潍坊楼市大混战!16个新盘扎堆亮相!
距上次潍坊楼市通的新盘上架栏目又过去了三个多月,潍坊楼市又涌现出了许多新面孔!国际惯例,先上图!(请以下项目主动结一下本期宣传费用,咳咳~)

渤海湾航运中心&山港雅居
渤海湾航运中心和山港雅居这两个项目用地是搭配出让的,均由山东港口产城融合发展渤海湾有限公司开发。前者为2020-G43商业服务业设施用地,后者为2020-9号商业+住宅用地。
3月26日,山港雅居项目的建设用地规划许可进行批后公布。

4月30日,渤海湾航运中心项目规划方案进行批前公示。

渤海湾航运中心目前已经动工。

渤海湾航运中心现场施工图

渤海湾航运中心总平面图

渤海湾航运中心鸟瞰图
海通恒信·鸢都名筑
海通恒信·鸢都名筑位于奎文区福寿街以南、规划支路以东,开发商是潍坊海宸置业有限公司,是由恒信集团和海通置业合作开发的项目。

海通恒信·鸢都名筑鸟瞰图
该项目规划有8栋住宅楼和1栋商业办公楼,其中包括3栋7层住宅楼,4栋17层住宅楼,1栋26层住宅楼以及1栋23层商业办公楼(底部裙房为3层),地下为1层地下车库和设备房。
6月2日,项目规划方案及建设工程规划许可进行批前公示。

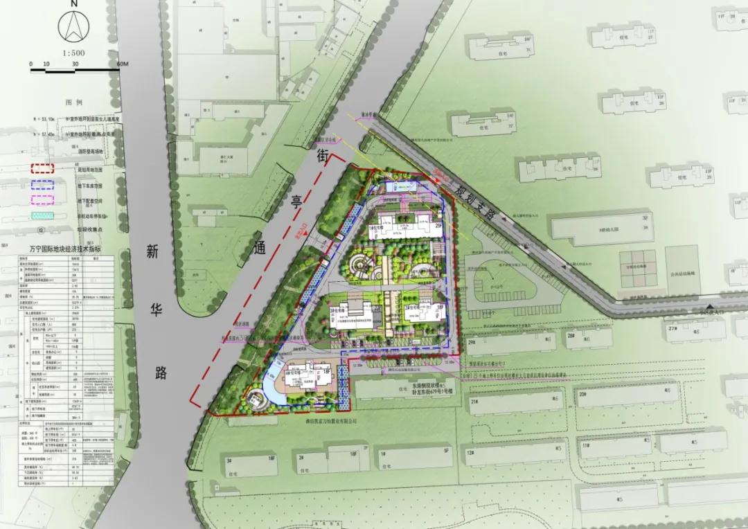
万宁国际
万宁国际位于奎文区通亭街以东、卧龙街以北,由潍坊鸿图置业有限公司开发。

万宁国际总平面图
万宁国际规划有4栋住宅楼,1#楼25F,2#楼18F,3#楼23F,4#楼18F。地下为一层地下车库和设备用房。

万宁国际鸟瞰图
7月14日,项目规划方案及建设工程规划许可进行批后公布。

贵隆华府
贵隆华府位于奎文区健康街以南、道口东路以西/道口东路以东,为奎文区潍州路街道黄家村城中村改造项目,由山东贵隆房地产开发有限公司开发。项目已进入施工手续办理阶段,预计近期将开工建设。

富丽世家
富丽世家位于奎文区虞河路以西、光明街以南,为奎文区樱南村城中村改造项目,由潍坊鼎正置业有限公司开发。

富丽世家鸟瞰图
湖景家园
湖景家园位于奎文区机场路以东,机场铁路以南,为奎文区廿里堡街道茂子庄村安置项目,由潍坊鼎鑫置业有限公司开发,其为德润集团下属企业。

6月30日,湖景家园部分楼座的建设工程规划许可进行批前公示。除社区服务中心外,其他楼座均为地上11层,地下1层。

中海锦园
中海锦园位于潍城区玉清西街以北,怡园路以东,由中海集团旗下的潍坊海慧地产有限公司开发。
6月25日,中海锦园1-6#楼建筑方案及建设工程规划许可进行批前公示。

恒信中梁·天阙府
恒信中梁·天阙府位于潍城区玉清西街以北、怡园路以东,由潍坊恒梁房地产开发有限公司开发。对,这就是当初由中南拿下,后来是恒信和中梁合作开发的那块神之转折地~
6月18日,项目部分楼座建设工程项目施工许可进行公示。

恒信中梁·天阙府鸟瞰图
碧桂园恒信·潍州府
碧桂园恒信·潍州府位于潍城区卧龙西街以南、规划支路以东,由潍坊恒华产业发展有限公司开发,从案名就可以看出,是碧桂园和恒信的合作项目。

碧桂园恒信·潍州府鸟瞰图
4月13日,项目部分楼座建筑方案及建设工程规划许可进行批前公示。

万科都会公园
万科都会公园位于潍城区站南广场片区月河路与仓南街交汇处西南角,由潍坊万科企业有限公司开发。

万科都会公园鸟瞰图
济高观澜郡
济高观澜郡位于潍城区向阳路以东、玉清西街以北,由潍坊济高汉谷产业发展有限公司开发。项目总建筑面积156550.26㎡,地上建筑面积114800.40㎡,地下建筑面积41749.86㎡。
5月20日,项目规划方案批前公示发布。5月29日,项目开工奠基仪式举行。

金庆名仁国际城
金庆名仁国际城位于潍城区向阳路以西、胥山街以北,由山东金庆名仁置业有限公司开发。
项目规划以小高层和高层住宅为主,其中一期建设18层住宅2栋、22层住宅1栋、23层住宅1栋,以及一所幼儿园和一处会所。

金庆名仁国际城鸟瞰图
中梁·云璟斓庭
中梁·云璟斓庭位于经济开发区禹王街以南,北海路以西,为张氏街道张氏片区旧村改造项目,由山东安金泰城市发展有限公司开发。从股权关系看,本项目是由中梁、华安、新嘉合作开发。

5月26日,项目建设用地规划许可进行批后公布。6月19日,项目城市展厅已开放。

祥瑞·水岸丽景二期
祥瑞·水岸丽景二期位于经济开发区民主街以北、文景路以西,由潍坊祥瑞置业有限公司开发。
5月17日,项目建设用地规划许可进行批后公布。

阳光盛锦苑
阳光盛锦苑位于坊子区白沙河以南、志远南路(原潍县南路)以东,由潍坊盛锦城市建设综合开发有限公司开发。项目规划用地面积17150㎡,总建筑面积35600㎡,其中地上面积27600㎡,地下面积8000㎡。

- 定了!潍坊开始缴费!
- “潍坊惠民保”10问10答:外地户口能买吗?能用医保卡支付吗……
- 提醒告诫函!潍坊中秋、国庆最新通知!
- 关于疫情防控!潍坊发布紧急提醒!
- 重要提醒:这些返潍来潍人员,请立即向所在社区(村)报备!
- 潍坊发布《致广大市民的一封信》!防范德尔塔毒株最新建议来了!
- 潍坊下发紧急通知!从严从实抓好近期疫情防控工作
- 2021年潍坊全市学生资助政策发布
- 重要提醒!潍坊人速看
- 创新为民,潍坊全市开展免费暑假托管服务
- 潍坊市庆祝建党100周年重点活动安排发布!
- 潍坊关于做好近期疫情防控工作的通告
- 潍坊七中2021年高中招生录取工作实施方案
- 城市简介----潍坊
- “2021年山东半岛城市群(潍坊)春季人才交流洽谈会”线上招聘正式启动
- 大局已定!2021潍坊即将全面爆发!潍坊人的身价又要暴涨了!!
- 延长运营时间!潍坊公交春节期间运行时间表发布
- 潍坊发布最新疫情防控通告,省外来潍返潍人员需注意这些
- 春节期间,潍坊全市将策划安排11项形式多样的文化和旅游服务活动
- 潍坊出台五项举措助力春节期间农民工稳岗留工




